Dave Pilger / RE/MAX Grande Prairie

101, 8715 109 Street , Commercial for sale in Richmond Industrial Park Grande Prairie , Alberta , T8V8H7

 MLS® # A2261019

0 bathrooms

Sign up to View

Days on Market

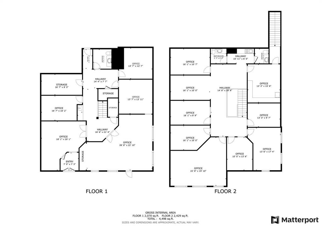
Beautiful 4498 sq ft space suitable for many different types of businesses. Originally built by a home builder to showcase their workmanship. This space feels more like a home than an office building. Gorgeous finishings throughout including quality cabinetry, granite countertops, high end trim, lighting & plumbing fixtures. The space even includes a fireplace & waterfalls in the large upstairs board room. Currently houses a therapy clinic but would be ideal for any business which requires lots of office...

Read More

Essential Information

  • MLS® #
    A2261019
  • Year Built
    2008
  • Property Type
    Office
  • MLS® #
    A2261019
  • Year Built
    2008
  • Property Type
    Office
  • MLS® #
    A2261019
  • Year Built
    2008
  • Property Type
    Office

Community Information

  • Postal Code
    T8V8H7
  • Postal Code
    T8V8H7
  • Postal Code
    T8V8H7

Interior

  • Heating
    High Efficiency
    Forced Air
    Natural Gas
  • Heating
    High Efficiency, Forced Air, Natural Gas
  • Heating
    High Efficiency
    Forced Air
    Natural Gas

Exterior

  • Roof
    Flat
  • Construction
    Aluminum Siding
    ICFs (Insulated Concrete Forms)
  • Roof
    Flat
  • Construction
    Aluminum Siding, ICFs (Insulated Concrete Forms)
  • Roof
    Flat
  • Construction
    Aluminum Siding
    ICFs (Insulated Concrete Forms)

Additional Details

  • Zoning
    IB
  • Zoning
    IB
  • Zoning
    IB

$18/sqft

101, 8715 109 Street

Schedule Tour
Contact Agent

$1/month
Est. Monthly Payment
$
$
%
Learn More